Programme neuf Appartement Monte
REF:
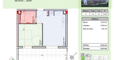
Dans un environnement calme et résidentiel, découvrez cet appartement T2 neuf situé au 1er étage du bâtiment A, au sein de la Résidence Gladys à Monte (20290).
D’une surface habitable de 33,24 m2, il se compose d’un séjour lumineux de 18,29 m2 avec cuisine ouverte, d’une chambre de 10,94 m2, et d’une salle de bains de 4,01 m2.
Le tout est prolongé par une grande terrasse de 14,14 m2, idéale pour vos moments de détente en extérieur.
Ce bien conviendra parfaitement pour un premier achat, un pied-à-terre ou un investissement locatif.
Livraison prévue selon le calendrier de la VEFA. Frais de notaire réduits.
Les informations sur les risques naturels auxquels ce bien est exposé sont disponibles sur le site Géorisques : www.georisques.gouv.fr
Honoraires charge: vendeur





